Gebze Yenigün Haberleri
Gebze Yenigün
17 Mayıs 2018 - 12:19
Darıca sahilde sahur keyfi
17 Mayıs 2018 - 12:13
“Bilişim üretime ve yatırıma yön veriyor”
17 Mayıs 2018 - 12:07
AK Parti Körfez’den hemşirelere çiçek
17 Mayıs 2018 - 11:52
Tiyatroyla ikinci baharlarını yaşıyorlar
17 Mayıs 2018 - 11:47
Özel çocuklar gönüllerince eğlendi
17 Mayıs 2018 - 11:38
"Körfez yola devam diyor"
17 Mayıs 2018 - 11:32
“24 Haziran'a kadar durmadan çalışacağız”
17 Mayıs 2018 - 11:24
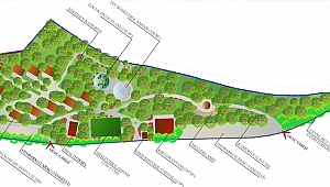
Kandıra Kumcağız’a 21 dönümlük mesire alanı
17 Mayıs 2018 - 11:19
Köşker ve Güler Mevlana Modern Pazaryeri’nde
17 Mayıs 2018 - 11:10
Karamürselli Gençler Genç Kürsü’de buluştu
17 Mayıs 2018 - 10:55
Proje ödülü olarak Cern’e gittiler
17 Mayıs 2018 - 10:41
Erbakancılardan hocalarına hayrat vakfı